锘?!DOCTYPE html PUBLIC "-//W3C//DTD XHTML 1.0 Transitional//EN" "http://www.w3.org/TR/xhtml1/DTD/xhtml1-transitional.dtd">
鍚嶇О錛歏SSJA-2鍨嬪弻娉曞叞闄愪綅浼哥緝鎺ュご PN6
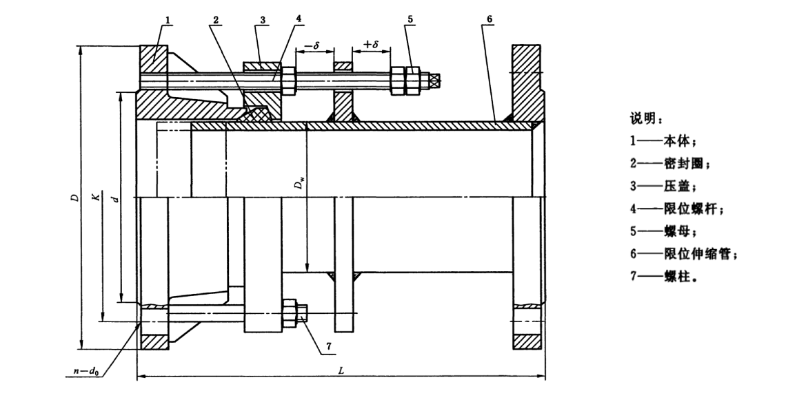
鏍囩錛?/strong>VSSJA-2鍨嬪弻娉曞叞闄愪綅浼哥緝鎺ュご
鍙屾硶鍏伴檺浣嶄幾緙╂帴澶村瀷鍙稸SSJA-2鎴朆2F鍨嬶紝綆¢亾涓よ竟娉曞叞鐨勮繛鎺ユ柟寮忥紝瀹夎鍦ㄧ閬撲笂鍙互鍜岄榾闂ㄨ繛鎺ワ紝鏃㈣ˉ鍋夸簡綆¢亾鐨勪幾緙╅噺鍙堝闃€闂ㄧ殑緇翠慨鎻愪緵浜嗘柟渚褲€?

鍙屾硶鍏伴檺浣嶄幾緙╂帴澶村畨瑁呰鏄?/strong>
VSSJA-2鍨嬪弻娉曞叞闄愪綅浼哥緝鎺ュご閫傜敤浜庝袱杈瑰潎涓庢硶鍏拌繛鎺ワ紝瀹夎鏃惰皟鏁翠駭鍝佷袱绔笌娉曞叞鐨勮繛鎺ラ暱搴︼紝瀵硅渚濇鍧囧寑鎷х揣鍘嬬洊铻烘爴錛屽啀璋冩暣濂介檺浣嶈灪姣嶏紝榪欐牱灝辮兘璁╃閬撳湪浼哥緝閲忚寖鍥村唴鍙互鑷敱浼哥緝錛岄攣瀹氫幾緙╅噺錛岀‘淇濈閬撶殑瀹夊叏榪愯銆?/p>
鍙屾硶鍏伴檺浣嶄幾緙╂帴澶村簲鐢ㄨ寖鍥?/strong>
VSSJA-2鍨嬪弻娉曞叞闄愪綅浼哥緝鎺ュご閫傜敤浜庤緭閫佹搗姘淬€佹貳姘淬€佸喎鐑按銆侀ギ鐢ㄦ按銆佺敓媧繪薄姘淬€佸師娌廣€佺噧娌廣€佹鼎婊戞補銆佹垚鍝佹補銆佺┖姘斻€佺叅姘斻€佹俯搴︿笉楂樹簬250搴︾殑钂告苯鍜岄綺掔矇鐘剁瓑浠嬭川銆?/p>
鍏О閫氬緞 錛わ籍 | 綆″瓙澶栧緞 Dw | 娉曞叞榪炴帴灝哄 | 瀵嗗皝闈?/span> d | 鎬婚暱 L | 浼歌妭閲?span style="color: rgb(255, 255, 255); font-family: 寰蔣闆呴粦,Microsoft YaHei; font-size: 20px;">鈻?/span> | 璐ㄩ噺 kg | ||||
娉曞叞 澶栧緞 D | 铻烘爴瀛斾腑蹇冨渾鐩村緞 K | 铻烘爴 瀛斿緞 d0 | 铻烘爴 | |||||||
| n錛堜釜錛?/span> | Th. | |||||||||
65 | 76 | 160 | 130 | 14 | 4 | M12 | 110 | 300 | 25.0 | 13.3 |
80 | 89 | 190 | 150 | 18 | M16 | 128 | 15.1 | |||
100 | 108 | 210 | 170 | 148 | 21.6 | |||||
125 | 133 | 240 | 200 | 8 | 178 | 27.6 | ||||
150 | 159 | 265 | 225 | 202 | 34.1 | |||||
200 | 219 | 320 | 280 | 258 | 42.4 | |||||
250 | 273 | 375 | 335 | 12 | 312 | 58.8 | ||||
300 | 325 | 440 | 395 | 22 | M20 | 365 | 370 | 32.5 | 69.8 | |
350 | 377 | 490 | 445 | 415 | 86.1 | |||||
400 | 426 | 540 | 495 | 16 | 465 | 98.1 | ||||
450 | 480 | 595 | 550 | 520 | 112.3 | |||||
500 | 530 | 645 | 600 | 20 | 570 | 138.3 | ||||
600 | 630 | 755 | 705 | 26 | M24 | 670 | 173.4 | |||
700 | 720 | 860 | 810 | 24 | 775 | 211.1 | ||||
800 | 820 | 975 | 920 | 30 | M27 | 880 | 600 | 65.0 | 380.9 | |
| 900 | 920 | 1075 | 1020 | 980 | 472.1 | |||||
| 1000 | 1020 | 1175 | 1120 | 28 | 1080 | 538.2 | ||||
| 1200 | 1220 | 1405 | 1340 | 33 | 32 | M30 | 1295 | 749.8 | ||
| 1400 | 1420 | 1630 | 1560 | 36 | 36 | M33 | 1510 | 640 | 1034.8 | |
| 1600 | 1620 | 1830 | 1760 | 40 | 1710 | 1405.6 | ||||
| 1800 | 1820 | 2045 | 1970 | 39 | 44 | M36 | 1920 | 1658.5 | ||
| 2000 | 2020 | 2265 | 2180 | 42 | 48 | M39 | 2125 | 1975.2 | ||
| 2200 | 2220 | 2475 | 2390 | 52 | 2335 | 2460.7 | ||||
| 2400 | 2420 | 2685 | 2600 | 56 | 2545 | 2751.4 | ||||
| 2600 | 2620 | 2905 | 2810 | 48 | 60 | M45 | 2750 | 710 | 70.0 | 2905.4 |
| 2800 | 2820 | 3115 | 3020 | 64 | 2960 | 3175.8 | ||||
| 3000 | 3020 | 3315 | 3220 | 68 | 3160 | 3472.3 | ||||
| 3200 | 3220 | 3525 | 3430 | 72 | 3370 | 3824.6 | ||||
| 3400 | 3420 | 3735 | 3640 | 76 | 3580 | 3744.0 | ||||
| 3600 | 3620 | 3970 | 3860 | 56 | 80 | M52 | 3790 | 4396.0 | ||
濡傞渶鏈€鏂版暟鎹鑱旂郴鍦ㄧ嚎瀹㈡湇
娌沖崡鑹紬綆′笟鏈夐檺鍏徃 鎵嬫満鍙鳳細18638277136 鍥鴻瘽錛?371-64018718 浼犵湡錛?nbsp;0371-64018718 閭錛?50165323@qq.com 鍦板潃錛氬琺涔夊競瑗挎潙闀囪タ鏉?nbsp; 緗戝潃錛?a href="http://m.wbxxa.com" target="_self">http://m.wbxxa.com